
CONOCE NUESTROS PROYECTOS
Residencia Velasco: Estructura residencial en metal - Consta de 2 plantas con volado de 6m formado con una viga compuesta tipo cercha y un recrecido arquitectonico tipo volado por encima de la cubierta (541m2)
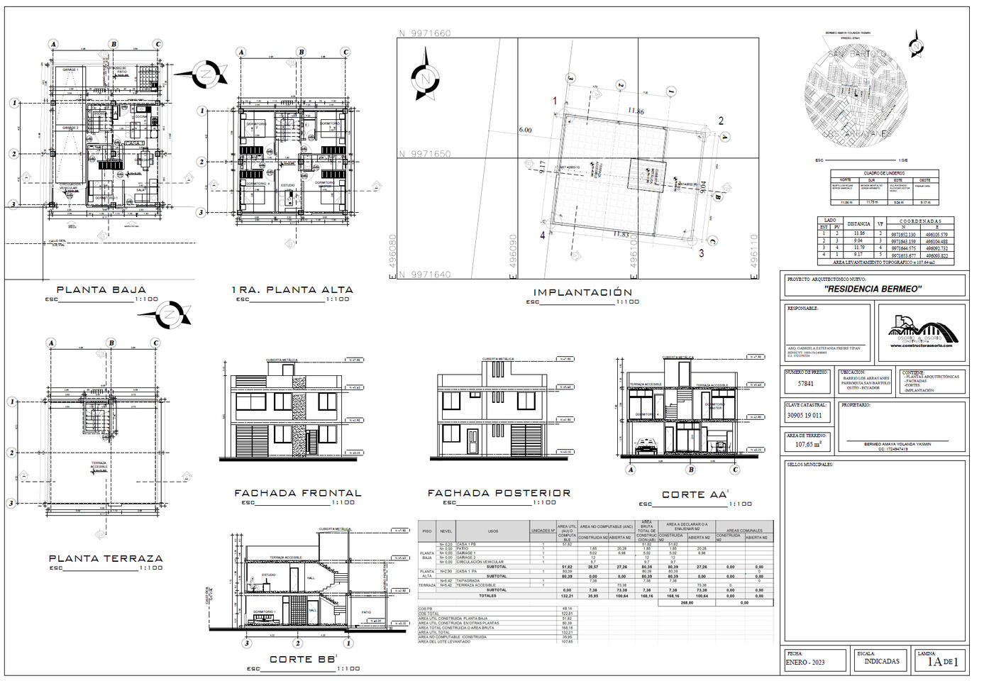
Residencia Bermeo: Estructura residencial en hormigón armado - Concebido para 4 pisos con primera fase de construccion de 2 pisos. Contiene vigas de cimentación por limitaciones de adosamiento en el terreno y por la capacidad portante del suelo (336.42 m2)
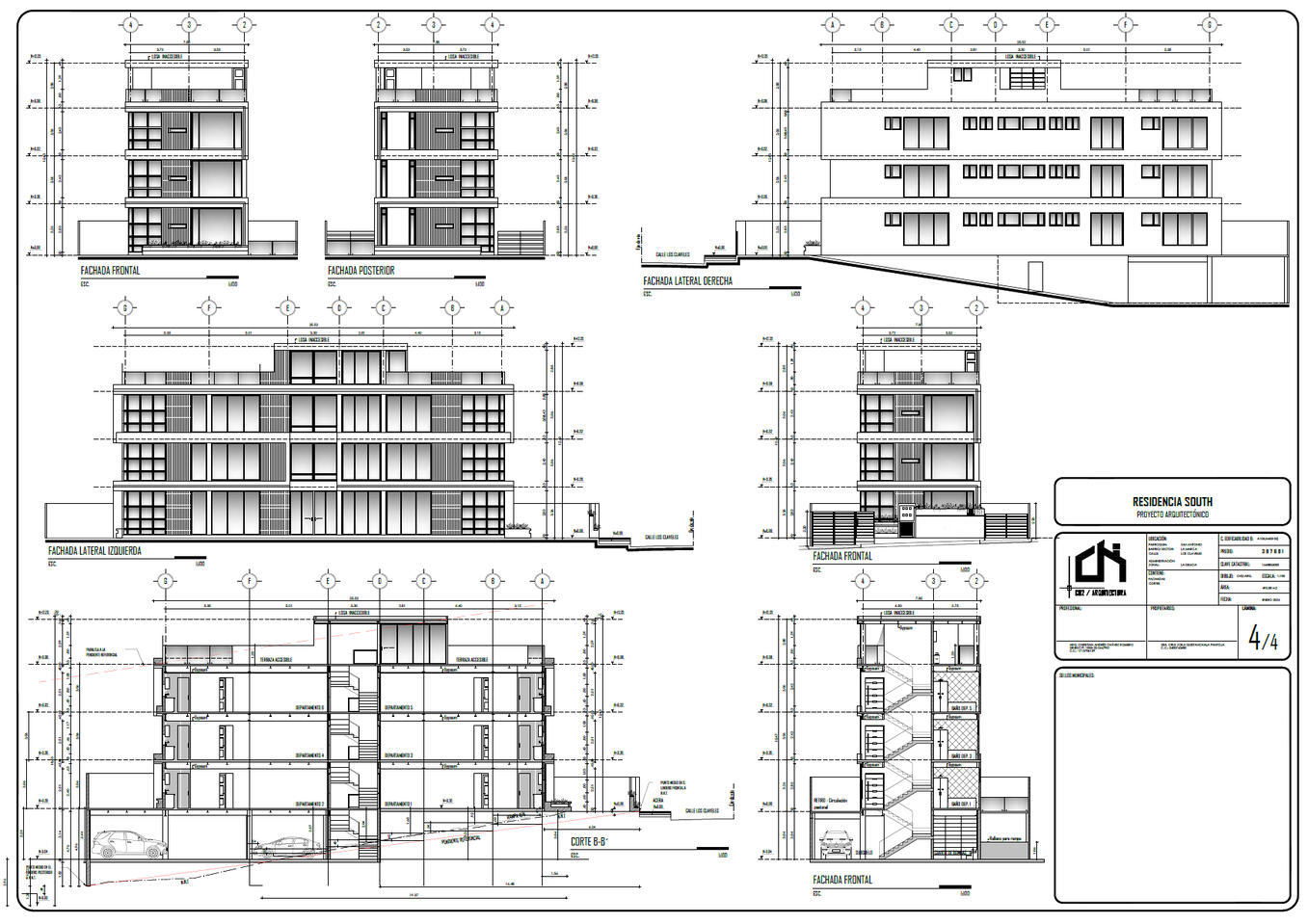
Proyecto South: Estructura residencial multifamiliar en metal - Consta de 4 pisos con acceso a parqueadero en subsuelo por medio de una rampa. Tiene cimentación a varios niveles por las limitaciones del terreno (pendiente negativa) por lo cual cuenta con una gran cantidad de muros de contención y de sótano. (840 m2)
Proyecto Zenith: Estructura residencial de alta gama en metal - Consta de 3 plantas con 1 desnivel y terminados arquitectónicos de lujo. Tiene 3 niveles de cubierta para favorecer la arquitectura y en la parte interna consta con una pasarela alta conectada a la cubierta con perfiles. La cimentacion por la forma del terreno se encuentra a dos niveles con muros de contención para la seguridad y estabilidad del suelo de desnivel. (1595.9 m2)
Residencia Díaz Egas: Estructura residencial mixta (hormigón - metal) - Consta de 2 plantas con 1 cubierta posterior en la primera planta de hormigón armado y una doble altura en la parte frontal de estructura metálica. (319.12m2)
Residencia Sr. Jimenez: Estructura residencial multifamiliar en hormigón armado - Consta de 3 plantas con un balcón accesible en la primera planta y 2 departamentos reducidos en las siguientes plantas. (346.41m2)
Casa de Campo: Estructura residencial en metal - Consta de 1 planta y 3 cubiertas metálicas en deck. Tiene un constrapiso elevado 60 cm del suelo para evitar humedad por la ubicación del proyecto. (192 m2)
























